Mmmm..... cookies...

Afdeling

Rønnebærvænget, Skovby
799-0

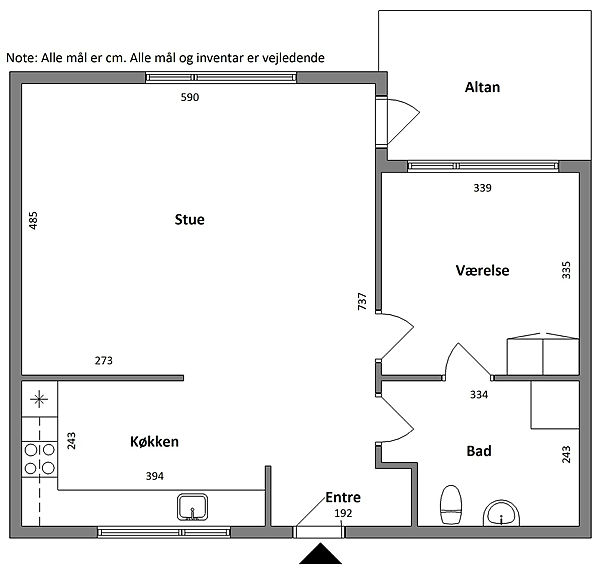
Rønnebærvænget 16, 22, 28, 30
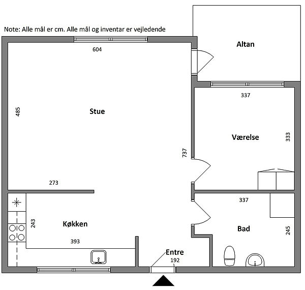
Rønnebærvænget 4. Etage/dør: st.
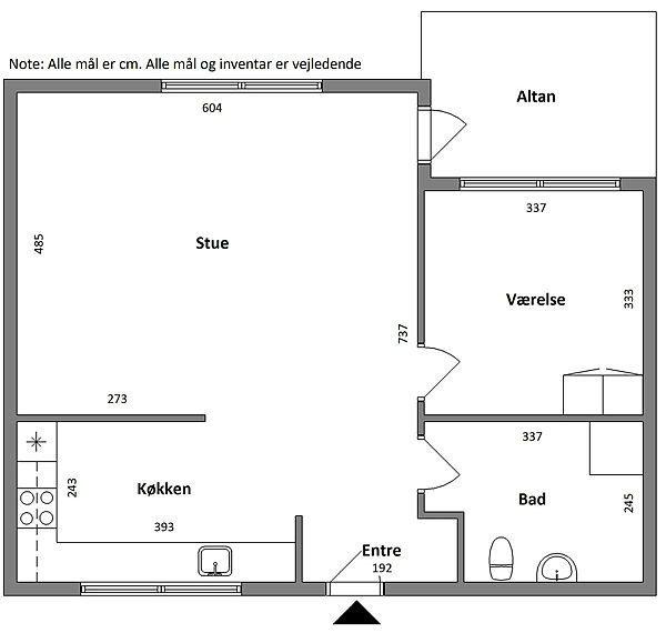
Rønnebærvænget 12, 32
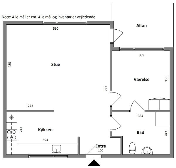
Rønnebærvænget 24
Rønnebærvænget 24. Etage/dør: 1.

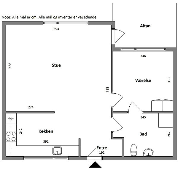
Boliginfo

Adresser

Rønnebærvænget 4 - 34,
8464 Galten

Boligtype

Antal boliger

9

Energimærke

D

Andet

Altan: Ja
Elevator: Nej
Husdyr tilladt: Ja

Værelser

2

Størrelser

73-79 m2

Husleje

7091-7606 kr.

Indskud

20700-22400 kr

Ventetid

6 mdr. - 1 år

Skriv dig op her!